Sprinter op Wisselspoor
In Utrecht’s Wisselspoor redevelopment area, BETA was responsible for the organizational concept for building block 9 and realized the Sprinter residential building within it. This student housing complex is designed around ideas of collectivity and connection – both among residents and between the building and the surrounding landscape.
The former marshalling yard of the Dutch Railways (NS) has in recent years been transformed into an urban residential area that builds on its industrial past, all while retaining characteristic buildings such as the “Wagenmakerij”. Commissioned by Synchroon and NS Vastgoed, studioninedots drew up the masterplan, in which low-rise buildings gradually transition into a higher density. The informal, fluid in-between space forms the heart of the area: an urban inner world of courtyards and paths, embedded in a spacious green area designed by DELVA Landscape. The paths subtly refer to the historic railway lines and connect the various building blocks.
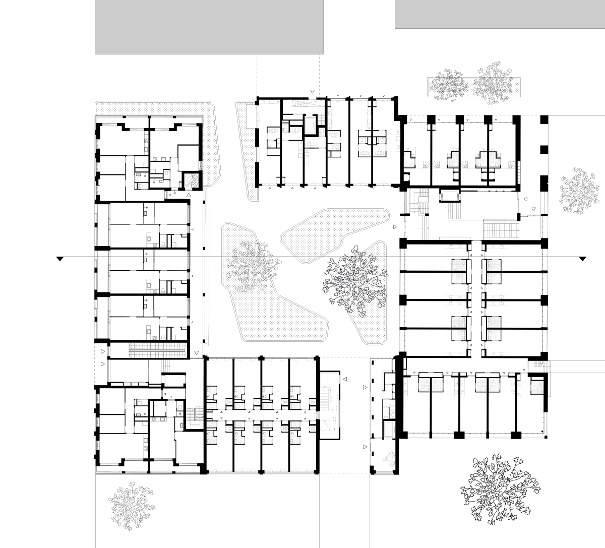
COLLECTIVE BLOCK CONCEPTAt the apex of the site, on the boundary in between the city and the park, BETA created the concept for a collection of buildings around a collective courtyard. The starting point was to bring together a diverse housing typology – students, first-time buyers, and social housing – into a coherent ensemble with a social and secure interior environment.Generous gates, passageways, and transparent entrance halls ensure accessibility and smooth transitions between inside and outside. The collective heart is enhanced by placing the underground bicycle parking facility beneath the buildings, which allows for a lush courtyard with ample soil for growing trees. The ground floor is raised slightly above the surroundings to mark a clear transition between public space and the privacy of the residences. The individual buildings were designed by BETA, Office Winhov, and Arons & Gelauff. In terms of materialization and detailing, the volumes were carefully coordinated to allow the courtyard block to function as an urban ensemble. Robust materials – expressive concrete elements, red brick, and metal – refer to the industrial past of the site, but with a contemporary vocabulary. THE SPRINTERSprinter is an open and accessible building that connects its residents with the surrounding area and with each other. Inside and outside merge into one another: the building invites you to enter, move through it, and then leave via a different route. Collective facilities and meeting places have been strategically positioned along well-lit and spatially attractive routes. This allows students to encounter each other naturally in their daily movements throughout the building. Along these routes, students reach the entrance alcoves of their apartments, often their first own residence. The apartments themselves are spacious and have their own kitchen, bathroom, and an outdoor space across the entire width of the home. On the street side, the building block opens up through a large gate that marks the main entrance from the north side. The gate forms a covered outdoor space: a transition zone between the urban space and the interior of the building. From here, visitors enter the central hall and the underground bicycle parking facility, which are directly connected to the courtyard garden and communal facilities such as the laundrette. The materialization reinforces this spatial continuity: brick continues from the façade to the entrance hall, paving stones merge into terracotta floor tiles, and fresh green wall tiles guide visitors towards the elevator and stairs. Soft yellow accents in handrails and tiling mark the vertical route to the apartments and the communal roof terrace, which serves as a meeting place for residents with panoramic views of the city. On the south side, a second, informal entrance provides direct access to the Spoorpark. A sculptural outdoor staircase with intermediate balconies connects the floors to the park and serves as a place to linger and soak up the views. With its industrial materialization and precise detailing, this staircase is more than just an access element: it is an expressive part of the building that connects the history of the location with the new densified context. The design for Sprinter resulted in a living environment where the history of the place, new architecture, landscape, and collectivity reinforce each other. |

























